Resume
Experience
Formlabs
SONOS
Critchfield Mechanical
University Projects
Masters Thesis
DOE Senior Project
Systems Integration Project
Education
Industrial Engineering
Manufacturing Engineering
Passion Projects
Website Redesign
RFID Lithopane Music Box
MLaster Chef
Joshua Castle
Resume
Experience
Formlabs
SONOS
Critchfield Mechanical
University Projects
Masters Thesis
DOE Senior Project
Systems Integration Project
Education
Industrial Engineering
Manufacturing Engineering
Passion Projects
Website Redesign
RFID Lithopane Music Box
MLaster Chef
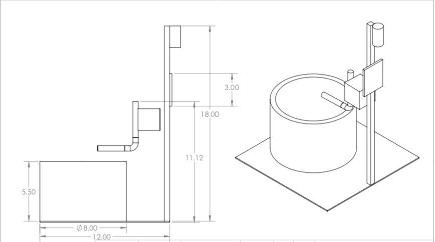
Mechanical Control System Design
Finished Prototype
Proof of Concept
Prototype Drawing